Архитектурный раздел проекта дома в Зеленогорске
title_69781d7d1999f6064949711769479549
title_69781d7d199b018943971621769479549
title_69781d7d199be10009185651769479549
title_69781d7d199cc21054322811769479549

Архитектурный раздел проекта дома в Зеленогорске

Артикул: АР-000001
Рейтинг:

Просмотров: 10238 | Отзывов: 1

Дата обновления проекта: 29.10.2023 19:35:44

Архитектурный раздел проектирования в Зеленогорске

В процессе разработки Архитектурного раздела мы применяем подход, утонченный до мельчайших деталей. Наши высококвалифицированные архитекторы внимательно анализируют ваши предпочтения и требования, а также учитывают характеристики окружающей среды. Результатом является уникальный дизайн, воплощающий гармонию, функциональность и элегантность.

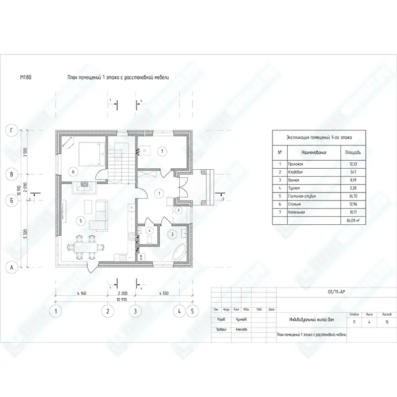
Архитектурный раздел проектирования (АР) является ключевым этапом в создании уникального и функционального дизайна вашего будущего дома. В этот раздел включены следующие основные компоненты:

  • Архитектурное решение: разработка концепции и планировочных решений, включая расположение комнат, этажность, внешний вид здания и его структурные особенности.
  • Планировки помещений: создание подробных планов каждого этажа с указанием размеров помещений, расположения дверей, окон и других элементов.
  • Фасады и наружные элементы: проработка внешнего вида здания, включая фасады, оконные и дверные проемы, отделку и декоративные элементы.
  • План крыши: разработка плана крыши с учетом ее формы, материалов и деталей, а также расположение вентиляционных и других систем.
  • Сечения и высотные отметки: создание поперечных и продольных сечений здания для более полного понимания его структуры и компоновки.
  • Общие спецификации: указание общих требований к материалам, отделке, окраске и другим архитектурным деталям.
  • Разрезы здания: подробные вертикальные разрезы здания, позволяющие лучше понять его структуру и компоновку по высоте.
  • Согласование с нормативами: учет требований строительных норм и правил, а также соответствие проекта всем необходимым лицензиям и разрешениям.
  • План благоустройства: посадка дома на участке в соответствии с правилами землепользования и застройки (ПЗЗ).
  • Визуализация: создание визуальных материалов, таких как чертежи, 3D-модели, чтобы помочь вам лучше представить будущий вид вашего дома.

Мы стремимся предоставить не только документацию вместе с планами и чертежами, но и образ, который подчеркнет индивидуальность вашего дома. Каждый элемент, каждая линия, каждый материал выбраны с вниманием к деталям и учтены в концепцию, чтобы любой элемент плана благоустройства имел свою цель и смысл, обогащая атмосферу и обеспечивая практичность.

Доверьте нам разработку архитектурного раздела, и мы с увлечением превратим вашу мечту в реальность.

Отзыв
Оставить отзыв
Проектирование
Срок разработки: 14 дней
Включает раздел: Архитектурный раздел (АР), Эскизный проект (ЭП)
Кол-во листов до: 16
Строительная компания «Эксперт Монолит» рада предложить вам эксклюзивные услуги в области разработки Архитектурного раздела в Зеленогорске. Наша компетентность в данной области заключается не только в создании планов и чертежей, но и в тщательной выработке архитектурных концепций, нацеленных на полное удовлетворение ваших потребностей и амбиций. Все работы выполняются по СНиП, ГОСТ и СП. Есть все необходимые лицензии и СРО.
Проектирование
Формат отчёта:
Старая цена: 550 Руб.
Цена от: 300 Руб.
Цены
0 м2 - 99 м2 300 Руб. / м2
100 м2 - 140 м2 280 Руб. / м2
140 м2 - 199 м2 260 Руб. / м2
от 200 м2 250 Руб. / м2
Количество:
Помощь при заказе
Поиск по проектированию
Срок разработки
Включает раздел

Категории проектирования

Категории домов

Актуальные акции и скидки

title_69781d7c68cc313082755501769479548
Скидка 50% на проектЭкономия до 100 т.р.
title_69781d7c68ce320164289201769479548
Ландшафтный проектЭкономия до 50 т.р.
title_69781d7c68cfd17440790151769479548
3D-моделированиеЭкономия до 35 т.р.
title_69781d7c68d1610546828361769479548
Бесплатное крыльцоЭкономия до 150 т.р.
title_69781d7c68d2e13285905561769479548
Бесплатный авто навесЭкономия до 100 т.р.
title_69781d7c68d6018232393861769479548
Проектирование баниЭкономия до 50 т.р.
title_69781d7c68d7815483330481769479548
Бесплатный септикЭкономия до 100 т.р.
title_69781d7c68d8e19057927261769479548
Строительство гаражаЭкономия до 500 т.р.

Вопросы и ответы по проектированию и строительству домов в Зеленогорске

Какие типы домов вы возводите?

Мы специализируемся на строительстве частных монолитных домов из железобетона, а также домов из кирпича и газобетона.

Что нужно для начала строительства дома?

Для начала сотрудничества с нами, необходимо чтобы вы имели в собственности участок. Если этот пункт выполнен, то требуется произвести на участке геологические работы по исследованию грунта на месте возведения дома. Поскольку монолитные или кирпичные дома имеют значительный вес, то это обязательное требование, перед началом проектирования вашего будущего дома.

На начальном этапе наши специалисты совместно с вами бесплатно разработают предварительный макет посадки дома на вашем участке. Также, разработают планировку под ваши индивидуальные требования (необходимые помещения, кол-во комнат и сан узлов, высота и кол-во этажей, инженерные сети и многое другое), затем предоставят 3Д визуализацию вашего будущего дома по 6 точкам.

После того, как макет будет вами утверждён, совместно с вами будет составлено техническое задание и договор на проектирование будущего дома. После этих этапов, можно уже приступать к строительству.

Зачем нужно проектирование дома?

Проектирование дома играет ключевую роль в создании функционального и комфортного жилья. Это позволяет оптимально распределить пространство, учитывая потребности жильцов. В процессе проектирования уделяется внимание планировке, эргономике, энергоэффективности и безопасности. Кроме этого, проектирование способствует экономии ресурсов при строительстве и последующей эксплуатации дома, а также влияет на его эстетический облик, создавая приятную атмосферу для проживания.

Более того, проектирование – это рабочая документация как для строительной организации, так и для заказчика, поскольку в ходе строительных работ во избежание спорных нюансов, проект является неотъемлемой частью договора и помогает решить множество рабочих моментов.

Наша компания не выполняет работы без проектной документации.

Что входит проектирование?

В проектирование входят основные разделы:

Архитектурный раздел (АР); Конструкции железобетонные (КЖ); Конструктивный раздел (КР); Водоснабжение и канализация (ВК); Отопление и вентиляция (ОВ); Электрика и освещение (ЭО); Генплан (Посадка дома на участок); Эскизный проект (ЭП); 3D моделирование (визуализация объекта по точкам).

В состав проекта входит приблизительно 60 листов и составляет полный комплект чертежей. Подробный перечень проектных работ опубликован в разделе проектирование.

Делаете ли вы геологические работы на участке?

Да, мы оказываем выполнение инженерно-геологических изысканий в полном объеме с целью комплексного изучения инженерно-геологических условий территории (площадки, участка, трассы) для получения необходимых и достаточных материалов при подготовке документов территориального планирования и планировки территории, архитектурно-строительного проектирования, строительства и реконструкции зданий и сооружений. Для возведения дома достаточно предоставить исследования с 3-х точек глубиной от 8 до 12 метров.

Полный перечень работ:

  • Сбор, изучение и систематизация материалов изысканий прошлых лет по горным выработкам;
  • Бурение скважин;
  • Отбор проб грунта;
  • Лабораторные определения гранулометрического состава и физических свойств грунтов;
  • Лабораторные определения химических свойств грунтовых вод;
  • Лабораторные определения коррозионной агрессивности грунтовых вод и грунтов по отношению к бетону и металлическим конструкциям;
  • Камеральная обработка материалов изысканий прошлых лет, буровых, лабораторных работ;
  • Составление Технического отчета.
Как происходит строительство дома?

Строительство выполняется поэтапно, согласно графику работ по договору:

  • Заезд строительной бригады;
  • Подготовительные работы по участку, фундаменту, инженерных сетей;
  • Возведение фундамента;
  • Подготовительные работы для инженерных сетей и закладка необходимых технологических отверстий (гильзы, проходки, шахты и т.п.);
  • Возведение стен, перекрытий, монолитной коробки дома;
  • Выполнение кровельных работ, монтаж окон и дверей;
  • Выдача паспорта с подтверждением основных характеристик бетона;
  • Проверка и запуск инженерных сетей;
  • Утепление наружных стен дома;
  • Выполнение фасадных работ (штукатурно-отделочные работы или кладка облицовочного кирпича);
  • Вывоз строительного мусора;
  • Сдача объекта заказчику;
  • Выезд строительной бригады.

Приемка каждого этапа работ или конечного результата подтверждается подписанием сторонами акта сдачи - приемки выполненных работ.

Какие сроки?

Сроки работ зависят от площади и сложности строения дома, ниже приведены базовые сроки площадью дома до 140 кв.м.:

  • Геология участка – 1 день.
  • Результаты экспертизы геологии – 30 дней.
  • Проектирование – до 2-х месяцев.
  • Строительство коробки дома под ключ с фасадной отделкой – от 2-х до 4-х месяцев, в зависимости от кол-ва этажей.

Все сроки прописаны в графике выполнения работ по договору.

Можно ли заказать строительство дома в кредит или ипотеку?

Через нашего кредитного брокера мы можем помочь получить кредит, он проведёт для вас необходимую консультацию. Однако, мы не гарантируем 100% результат, поскольку каждый случай является индивидуальным.

Услуги кредитного брокера платные и рассчитываются отдельно.

Какие гарантии вы даете?

Мы предоставляем гарантии:

  • На проектирование – 5 лет;
  • На строительство дома – 5 лет;
  • На используемые материалы – гарантия на условиях производителя, как правило от 2 лет и более.
Как происходит оплата?

Оплата осуществляется поэтапно, согласно графику оплаты и строительных работ по договору. Мы никогда не берем 100% предоплату, поэтому вносить всю сумму сразу нет необходимости.

Тем самым, мы создаем приемлемые условия для своих заказчиков, чтобы они могли своевременно сформировать бюджет на строительство заблаговременно. Такой метод напоминает оплату в рассрочку.

Цены на строительство жилья прописаны в договоре, после согласования сметных работ и не могут быть увеличены.

Есть вопрос? Задайте его нам

Уважаемые клиенты, пожалуйста опишите максимально подробно ваше сообщение и по необходимости приложите файлы (максимальный размер файла 1,2Mb).

Если ваш вопрос покажется нам интересным, то он будет опубликован в разделе «вопросы и ответы».

Наши специалисты ответят вам в ближайшее рабочее время

Подписка на рассылку
Подпишитесь, чтобы получать уникальные предложения на проектирование и строительство домов

В соответствии со статьей 437 ГК РФ все предложения и цены, указанные на сайте, носят информационный характер и не являются публичной офертой.

Контакты

Адрес: г. Санкт-Петербург, пр-кт Стачек, д. 16, Литера А, помещ. 124-Н

Тел.: +7 (812) 241-18-80

Адрес электронной почты защищен от спам-ботов. Для просмотра адреса в браузере должен быть включен Javascript.

График работы:

ПН-ЧТ: с 10:00 до 19:00

ПТ-СБ: с 10:00 до 18:00

Форма обратной связи