Эскизный проект дома в Подпорожье
title_69e06cc88705a17658488281776315592
title_69e06cc88706a3214382401776315592
title_69e06cc8870773144397321776315592
title_69e06cc8870831171697011776315592

Эскизный проект дома или иного строительного объекта. Раздел ЭП в Подпорожье

Артикул: ЭП-000001
Рейтинг:

Просмотров: 11239 | Отзывов: 1

Дата обновления проекта: 29.10.2023 19:36:20

Услуги по эскизному проектированию в Подпорожье

В нашей компании эскизный проект (ЭП) — это уже сформировавшийся вариант модели дома для создания вашего будущего проекта, где внимание уделяется ключевым архитектурным и функциональным аспектам проектирования.

Перед тем как приступить к разработке Эскизного проекта (ЭП), мы предлагаем выполнить 3D-моделирование, которое имеет важную роль перед началом разработки проекта. Поскольку 3D-моделирование — это начальный шаг для формирования идеи, включая общую концептуальностью и внешний образ объекта без детальных расчётов. А эскизное проектирование – относится к разделу проекта и более детальная визуализация объекта с учетом всех расчётов его внешнего вида и внутренней структуры. 3D моделирование помогает определить общий облик, а ЭП корректирует и добавляет детали согласно расчетам проектировщика.

Предоставляем профессиональные услуги по разработке эскизного проекта (ЭП) при проектировании архитектурного и конструктивного разделов (АР и КР) для вашего планируемого дома или иного объекта.

Разработка эскизного проекта является ключевым шагом, положенным в основу создания вашей мечты о доме. В рамках этого раздела наши опытные архитекторы и инженеры творчески воплощают ваши идеи и представления в жизнь, учитывая не только визуальные аспекты, но и функциональность эффективность, современные стандарты, СНиП и ГОСТ.

Что входит в эскизный проект:

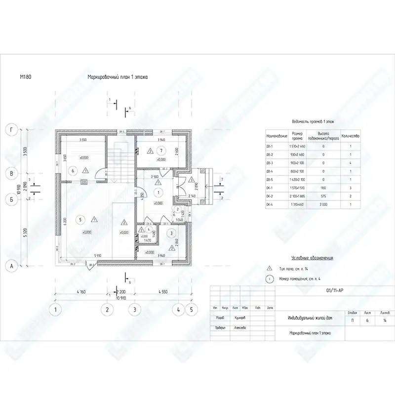
  • Архитектурные решения: проработка уникальных архитектурных концепций, отражающие ваш стиль и предпочтения. В состав входит: расчет и планировка помещений, маркировочный план с дверными и оконными проёмами, план кровли, планы фасадов, виды в разрезе и иные детали. Разрабатываем архитектурные решения, определяя форму и структуру вашего дома.
  • Визуализация: с помощью современных технологий мы создаем визуализации, позволяющие вам визуально оценить будущий результат. Это помогает лучше понять, как будут выглядеть интерьеры и экстерьеры вашего дома.
  • Конструктивные решения: в рамках ЭП мы также определяем основные конструктивные задачи, которые обеспечивают не только эстетику, но и эффективное использование пространства позволяет создать удобные и функциональные интерьеры, а также надежность вашего дома. Это включает в себя выбор материалов, расположение несущих элементов и другие аспекты.
  • Подготовка к следующим этапам: готовый ЭП служит основой для разработки более детальных разделов: «Архитектурный раздел» (АР) и «Конструктивный раздел» (КР). Это позволяет более точно рассчитать параметры будущей постройки и четко определить дальнейшие шаги для более эффективного выполнения всего проекта.

Мы ценим индивидуальность каждого проекта и готовы создать для вас уникальное архитектурное решение, которое будет сочетать стиль, комфорт и функциональность.

Сотрудничая с нами, вы получаете профессиональную разработку эскизного проекта и уверенность в том, что ваш будущий дом будет отвечать вашим ожиданиям и требованиям. Мы стремимся к тому, чтобы каждый проект стал уникальным проявлением вашей индивидуальности.

Отзыв
Оставить отзыв
Проектирование
Срок разработки: 14 дней
Включает раздел: Эскизный проект (ЭП), 3D моделирование (визуализация объекта по точкам)
Кол-во листов до: 6
Разработка эскизного проекта дома или иного строительного объекта в Подпорожье от строительной компании «Эксперт Монолит». Оказание услуг по эскизному проектированию ЭП.
Проектирование
Формат отчёта:
Старая цена: 250 Руб.
Цена от: 130 Руб.
Цены
0 м2 - 99 м2 130 Руб. / м2
100 м2 - 139 м2 120 Руб. / м2
140 м2 - 199 м2 110 Руб. / м2
от 200 м2 100 Руб. / м2
Количество:
Помощь при заказе
Поиск по проектированию
Срок разработки
Включает раздел

Категории проектирования

Категории домов

Актуальные акции и скидки

title_69e06cc80402814116054511776315592
Скидка 50% на проектЭкономия до 100 т.р.
title_69e06cc80404a17149879431776315592
Ландшафтный проектЭкономия до 50 т.р.
title_69e06cc80406516806316661776315592
3D-моделированиеЭкономия до 35 т.р.
title_69e06cc80408115241188331776315592
Бесплатное крыльцоЭкономия до 150 т.р.
title_69e06cc8040b95408741241776315592
Бесплатный авто навесЭкономия до 100 т.р.
title_69e06cc8040d220254453851776315592
Проектирование баниЭкономия до 50 т.р.
title_69e06cc8040eb1503061951776315592
Бесплатный септикЭкономия до 100 т.р.
title_69e06cc80410416786641611776315592
Строительство гаражаЭкономия до 500 т.р.

Вопросы и ответы по проектированию и строительству домов в Подпорожье

Какие типы домов вы возводите?

Мы специализируемся на строительстве частных монолитных домов из железобетона, а также домов из кирпича и газобетона.

Что нужно для начала строительства дома?

Для начала сотрудничества с нами, необходимо чтобы вы имели в собственности участок. Если этот пункт выполнен, то требуется произвести на участке геологические работы по исследованию грунта на месте возведения дома. Поскольку монолитные или кирпичные дома имеют значительный вес, то это обязательное требование, перед началом проектирования вашего будущего дома.

На начальном этапе наши специалисты совместно с вами бесплатно разработают предварительный макет посадки дома на вашем участке. Также, разработают планировку под ваши индивидуальные требования (необходимые помещения, кол-во комнат и сан узлов, высота и кол-во этажей, инженерные сети и многое другое), затем предоставят 3Д визуализацию вашего будущего дома по 6 точкам.

После того, как макет будет вами утверждён, совместно с вами будет составлено техническое задание и договор на проектирование будущего дома. После этих этапов, можно уже приступать к строительству.

Зачем нужно проектирование дома?

Проектирование дома играет ключевую роль в создании функционального и комфортного жилья. Это позволяет оптимально распределить пространство, учитывая потребности жильцов. В процессе проектирования уделяется внимание планировке, эргономике, энергоэффективности и безопасности. Кроме этого, проектирование способствует экономии ресурсов при строительстве и последующей эксплуатации дома, а также влияет на его эстетический облик, создавая приятную атмосферу для проживания.

Более того, проектирование – это рабочая документация как для строительной организации, так и для заказчика, поскольку в ходе строительных работ во избежание спорных нюансов, проект является неотъемлемой частью договора и помогает решить множество рабочих моментов.

Наша компания не выполняет работы без проектной документации.

Что входит проектирование?

В проектирование входят основные разделы:

Архитектурный раздел (АР); Конструкции железобетонные (КЖ); Конструктивный раздел (КР); Водоснабжение и канализация (ВК); Отопление и вентиляция (ОВ); Электрика и освещение (ЭО); Генплан (Посадка дома на участок); Эскизный проект (ЭП); 3D моделирование (визуализация объекта по точкам).

В состав проекта входит приблизительно 60 листов и составляет полный комплект чертежей. Подробный перечень проектных работ опубликован в разделе проектирование.

Делаете ли вы геологические работы на участке?

Да, мы оказываем выполнение инженерно-геологических изысканий в полном объеме с целью комплексного изучения инженерно-геологических условий территории (площадки, участка, трассы) для получения необходимых и достаточных материалов при подготовке документов территориального планирования и планировки территории, архитектурно-строительного проектирования, строительства и реконструкции зданий и сооружений. Для возведения дома достаточно предоставить исследования с 3-х точек глубиной от 8 до 12 метров.

Полный перечень работ:

  • Сбор, изучение и систематизация материалов изысканий прошлых лет по горным выработкам;
  • Бурение скважин;
  • Отбор проб грунта;
  • Лабораторные определения гранулометрического состава и физических свойств грунтов;
  • Лабораторные определения химических свойств грунтовых вод;
  • Лабораторные определения коррозионной агрессивности грунтовых вод и грунтов по отношению к бетону и металлическим конструкциям;
  • Камеральная обработка материалов изысканий прошлых лет, буровых, лабораторных работ;
  • Составление Технического отчета.
Как происходит строительство дома?

Строительство выполняется поэтапно, согласно графику работ по договору:

  • Заезд строительной бригады;
  • Подготовительные работы по участку, фундаменту, инженерных сетей;
  • Возведение фундамента;
  • Подготовительные работы для инженерных сетей и закладка необходимых технологических отверстий (гильзы, проходки, шахты и т.п.);
  • Возведение стен, перекрытий, монолитной коробки дома;
  • Выполнение кровельных работ, монтаж окон и дверей;
  • Выдача паспорта с подтверждением основных характеристик бетона;
  • Проверка и запуск инженерных сетей;
  • Утепление наружных стен дома;
  • Выполнение фасадных работ (штукатурно-отделочные работы или кладка облицовочного кирпича);
  • Вывоз строительного мусора;
  • Сдача объекта заказчику;
  • Выезд строительной бригады.

Приемка каждого этапа работ или конечного результата подтверждается подписанием сторонами акта сдачи - приемки выполненных работ.

Какие сроки?

Сроки работ зависят от площади и сложности строения дома, ниже приведены базовые сроки площадью дома до 140 кв.м.:

  • Геология участка – 1 день.
  • Результаты экспертизы геологии – 30 дней.
  • Проектирование – до 2-х месяцев.
  • Строительство коробки дома под ключ с фасадной отделкой – от 2-х до 4-х месяцев, в зависимости от кол-ва этажей.

Все сроки прописаны в графике выполнения работ по договору.

Можно ли заказать строительство дома в кредит или ипотеку?

Через нашего кредитного брокера мы можем помочь получить кредит, он проведёт для вас необходимую консультацию. Однако, мы не гарантируем 100% результат, поскольку каждый случай является индивидуальным.

Услуги кредитного брокера платные и рассчитываются отдельно.

Какие гарантии вы даете?

Мы предоставляем гарантии:

  • На проектирование – 5 лет;
  • На строительство дома – 5 лет;
  • На используемые материалы – гарантия на условиях производителя, как правило от 2 лет и более.
Как происходит оплата?

Оплата осуществляется поэтапно, согласно графику оплаты и строительных работ по договору. Мы никогда не берем 100% предоплату, поэтому вносить всю сумму сразу нет необходимости.

Тем самым, мы создаем приемлемые условия для своих заказчиков, чтобы они могли своевременно сформировать бюджет на строительство заблаговременно. Такой метод напоминает оплату в рассрочку.

Цены на строительство жилья прописаны в договоре, после согласования сметных работ и не могут быть увеличены.

Есть вопрос? Задайте его нам

Уважаемые клиенты, пожалуйста опишите максимально подробно ваше сообщение и по необходимости приложите файлы (максимальный размер файла 1,2Mb).

Если ваш вопрос покажется нам интересным, то он будет опубликован в разделе «вопросы и ответы».

Наши специалисты ответят вам в ближайшее рабочее время

Подписка на рассылку
Подпишитесь, чтобы получать уникальные предложения на проектирование и строительство домов

В соответствии со статьей 437 ГК РФ все предложения и цены, указанные на сайте, носят информационный характер и не являются публичной офертой.

Контакты

Адрес: г. Санкт-Петербург, пр-кт Стачек, д. 16, Литера А, помещ. 124-Н

Тел.: +7 (812) 241-18-80

Адрес электронной почты защищен от спам-ботов. Для просмотра адреса в браузере должен быть включен Javascript.

График работы:

ПН-ЧТ: с 10:00 до 19:00

ПТ-СБ: с 10:00 до 18:00

Форма обратной связи