Проектирование электрики и освещения дома. Раздел ЭО в Никольском
title_6a1a9ade99b5111917189511780128478
title_6a1a9ade99b5e18195484181780128478
title_6a1a9ade99b6915173937691780128478
title_6a1a9ade99b7310331886051780128478

Проектирование электрики и освещения для проекта дома. Раздел ЭО в Никольском

Артикул: ЭО-000001
Рейтинг:

Просмотров: 13125 | Отзывов: 1

Дата обновления проекта: 29.10.2023 19:37:08

Разработка проекта электрики и освещения для дома в Никольском

Наша команда высококвалифицированных инженеров и дизайнеров разрабатывает индивидуальные решения, которые соответствуют вашим потребностям и предпочтениям.

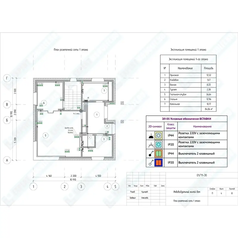
Предоставляем вам информацию о ключевой составляющей проектного раздела - Электрика и Освещение (ЭО). Этот раздел играет важную роль в обеспечении эффективной и безопасной электрической системы вашего будущего дома. Вот что входит в базовый раздел ЭО:

  • Персональный подход: внимательно выслушиваем ваши пожелания и предоставляем индивидуальные решения для каждой комнаты и области вашего дома, создавая идеальную атмосферу и функциональность.
  • Электрические сети и распределение: разработка планов электрических сетей, включая распределение электропитания по всему дому. Это включает в себя определение точек подключения, выбор аппаратуры и кабельных трасс.
  • Освещение: создаем системы освещения, которые не только обеспечивают функциональность, но и способствуют созданию комфортной атмосферы в вашем доме.
  • Технические Расчеты: расчеты нагрузки и мощности, чтобы гарантировать, что электрическая система будет работать стабильно и без перегрузок.
  • Безопасность: вся коммуникация прокладывается с учетом всех необходимых норм, отвечающих за безопасность в доме.
  • Согласование и совместимость: Раздел ЭО взаимодействует с другими разделами проектирования, чтобы обеспечить гармоничное взаимодействие всех систем вашего дома.
  • Прозрачность и контроль: предоставляем детальные планы, схемы и технические спецификации, чтобы вы всегда знали, как устроены электрические системы вашего дома.

Дополнительные пункты для раздела:

  • Безопасность и автоматизация: по желанию заказчика, интегрируем системы безопасности, такие как пожарная сигнализация и охранная система, в общую электрическую сеть. Кроме того, мы предоставляем возможности для домашней автоматизации, чтобы вы могли управлять освещением и устройствами с удобства вашего смартфона.
  • Энергоэффективность: по желанию заказчика, разрабатываем решения для оптимизации потребления электроэнергии, что помогает снизить расходы на электричество и иметь более экологичный дом. Уделяем особое внимание к дополнительным системам безопасности, включая аварийное освещение, датчики движения и сигнализацию.
  • Бесперебойное питание: рассматриваем возможности для резервного питания, чтобы обеспечить работу важных устройств в случае сбоев в электроснабжении.

Наша команда готова ответить на ваши вопросы и предоставить консультации относительно электрических аспектов вашего проекта на всех этапах.

Мы гордимся своим опытом и знаниями в области электрики и освещения. Заказывайте у нас проектирование, и мы с удовольствием поможем создать эффективную, безопасную и современную электрическую систему для вашего будущего дома.

Отзыв
Оставить отзыв
Проектирование
Срок разработки: 7 дней
Включает раздел: Электрика и освещение (ЭО)
Кол-во листов до: 10
Строительная компания «Эксперт Монолит» выполняет проектирование электрики и освещения дома в Никольском. Наша команда высококвалифицированных инженеров разработает раздел «Электрика и Освещение» для проекта, который будет соответствовать не только вашим потребностям и предпочтениям, но и СНиП и ГОСТ.
Проектирование
Формат отчёта:
Старая цена: 360 Руб.
Цена от: 190 Руб.
Цены
0 м2 - 99 м2 190 Руб. / м2
100 м2 - 139 м2 170 Руб. / м2
140 м2 - 199 м2 150 Руб. / м2
от 200 м2 130 Руб. / м2
Количество:
Помощь при заказе
Поиск по проектированию
Срок разработки
Включает раздел

Категории проектирования

Категории домов

Актуальные акции и скидки

title_6a1a9ade1d73319437992701780128478
Скидка 50% на проектЭкономия до 100 т.р.
title_6a1a9ade1d74e20197224901780128478
Ландшафтный проектЭкономия до 50 т.р.
title_6a1a9ade1d7642927748261780128478
3D-моделированиеЭкономия до 35 т.р.
title_6a1a9ade1d77b16069095611780128478
Бесплатное крыльцоЭкономия до 150 т.р.
title_6a1a9ade1d79016718415241780128478
Бесплатный авто навесЭкономия до 100 т.р.
title_6a1a9ade1d7a47672400531780128478
Проектирование баниЭкономия до 50 т.р.
title_6a1a9ade1d7b85323884481780128478
Бесплатный септикЭкономия до 100 т.р.
title_6a1a9ade1d7cc10985140011780128478
Строительство гаражаЭкономия до 500 т.р.

Вопросы и ответы по проектированию и строительству домов в Никольском

Какие типы домов вы возводите?

Мы специализируемся на строительстве частных монолитных домов из железобетона, а также домов из кирпича и газобетона.

Что нужно для начала строительства дома?

Для начала сотрудничества с нами, необходимо чтобы вы имели в собственности участок. Если этот пункт выполнен, то требуется произвести на участке геологические работы по исследованию грунта на месте возведения дома. Поскольку монолитные или кирпичные дома имеют значительный вес, то это обязательное требование, перед началом проектирования вашего будущего дома.

На начальном этапе наши специалисты совместно с вами бесплатно разработают предварительный макет посадки дома на вашем участке. Также, разработают планировку под ваши индивидуальные требования (необходимые помещения, кол-во комнат и сан узлов, высота и кол-во этажей, инженерные сети и многое другое), затем предоставят 3Д визуализацию вашего будущего дома по 6 точкам.

После того, как макет будет вами утверждён, совместно с вами будет составлено техническое задание и договор на проектирование будущего дома. После этих этапов, можно уже приступать к строительству.

Зачем нужно проектирование дома?

Проектирование дома играет ключевую роль в создании функционального и комфортного жилья. Это позволяет оптимально распределить пространство, учитывая потребности жильцов. В процессе проектирования уделяется внимание планировке, эргономике, энергоэффективности и безопасности. Кроме этого, проектирование способствует экономии ресурсов при строительстве и последующей эксплуатации дома, а также влияет на его эстетический облик, создавая приятную атмосферу для проживания.

Более того, проектирование – это рабочая документация как для строительной организации, так и для заказчика, поскольку в ходе строительных работ во избежание спорных нюансов, проект является неотъемлемой частью договора и помогает решить множество рабочих моментов.

Наша компания не выполняет работы без проектной документации.

Что входит проектирование?

В проектирование входят основные разделы:

Архитектурный раздел (АР); Конструкции железобетонные (КЖ); Конструктивный раздел (КР); Водоснабжение и канализация (ВК); Отопление и вентиляция (ОВ); Электрика и освещение (ЭО); Генплан (Посадка дома на участок); Эскизный проект (ЭП); 3D моделирование (визуализация объекта по точкам).

В состав проекта входит приблизительно 60 листов и составляет полный комплект чертежей. Подробный перечень проектных работ опубликован в разделе проектирование.

Делаете ли вы геологические работы на участке?

Да, мы оказываем выполнение инженерно-геологических изысканий в полном объеме с целью комплексного изучения инженерно-геологических условий территории (площадки, участка, трассы) для получения необходимых и достаточных материалов при подготовке документов территориального планирования и планировки территории, архитектурно-строительного проектирования, строительства и реконструкции зданий и сооружений. Для возведения дома достаточно предоставить исследования с 3-х точек глубиной от 8 до 12 метров.

Полный перечень работ:

  • Сбор, изучение и систематизация материалов изысканий прошлых лет по горным выработкам;
  • Бурение скважин;
  • Отбор проб грунта;
  • Лабораторные определения гранулометрического состава и физических свойств грунтов;
  • Лабораторные определения химических свойств грунтовых вод;
  • Лабораторные определения коррозионной агрессивности грунтовых вод и грунтов по отношению к бетону и металлическим конструкциям;
  • Камеральная обработка материалов изысканий прошлых лет, буровых, лабораторных работ;
  • Составление Технического отчета.
Как происходит строительство дома?

Строительство выполняется поэтапно, согласно графику работ по договору:

  • Заезд строительной бригады;
  • Подготовительные работы по участку, фундаменту, инженерных сетей;
  • Возведение фундамента;
  • Подготовительные работы для инженерных сетей и закладка необходимых технологических отверстий (гильзы, проходки, шахты и т.п.);
  • Возведение стен, перекрытий, монолитной коробки дома;
  • Выполнение кровельных работ, монтаж окон и дверей;
  • Выдача паспорта с подтверждением основных характеристик бетона;
  • Проверка и запуск инженерных сетей;
  • Утепление наружных стен дома;
  • Выполнение фасадных работ (штукатурно-отделочные работы или кладка облицовочного кирпича);
  • Вывоз строительного мусора;
  • Сдача объекта заказчику;
  • Выезд строительной бригады.

Приемка каждого этапа работ или конечного результата подтверждается подписанием сторонами акта сдачи - приемки выполненных работ.

Какие сроки?

Сроки работ зависят от площади и сложности строения дома, ниже приведены базовые сроки площадью дома до 140 кв.м.:

  • Геология участка – 1 день.
  • Результаты экспертизы геологии – 30 дней.
  • Проектирование – до 2-х месяцев.
  • Строительство коробки дома под ключ с фасадной отделкой – от 2-х до 4-х месяцев, в зависимости от кол-ва этажей.

Все сроки прописаны в графике выполнения работ по договору.

Можно ли заказать строительство дома в кредит или ипотеку?

Через нашего кредитного брокера мы можем помочь получить кредит, он проведёт для вас необходимую консультацию. Однако, мы не гарантируем 100% результат, поскольку каждый случай является индивидуальным.

Услуги кредитного брокера платные и рассчитываются отдельно.

Какие гарантии вы даете?

Мы предоставляем гарантии:

  • На проектирование – 5 лет;
  • На строительство дома – 5 лет;
  • На используемые материалы – гарантия на условиях производителя, как правило от 2 лет и более.
Как происходит оплата?

Оплата осуществляется поэтапно, согласно графику оплаты и строительных работ по договору. Мы никогда не берем 100% предоплату, поэтому вносить всю сумму сразу нет необходимости.

Тем самым, мы создаем приемлемые условия для своих заказчиков, чтобы они могли своевременно сформировать бюджет на строительство заблаговременно. Такой метод напоминает оплату в рассрочку.

Цены на строительство жилья прописаны в договоре, после согласования сметных работ и не могут быть увеличены.

Есть вопрос? Задайте его нам

Уважаемые клиенты, пожалуйста опишите максимально подробно ваше сообщение и по необходимости приложите файлы (максимальный размер файла 1,2Mb).

Если ваш вопрос покажется нам интересным, то он будет опубликован в разделе «вопросы и ответы».

Наши специалисты ответят вам в ближайшее рабочее время

Подписка на рассылку
Подпишитесь, чтобы получать уникальные предложения на проектирование и строительство домов

В соответствии со статьей 437 ГК РФ все предложения и цены, указанные на сайте, носят информационный характер и не являются публичной офертой.

Контакты

Адрес: г. Санкт-Петербург, пр-кт Стачек, д. 16, Литера А, помещ. 124-Н

Тел.: +7 (812) 241-18-80

Адрес электронной почты защищен от спам-ботов. Для просмотра адреса в браузере должен быть включен Javascript.

График работы:

ПН-ЧТ: с 10:00 до 19:00

ПТ-СБ: с 10:00 до 18:00

Форма обратной связи