Монолитный дом ДМР 101 в Мурино
title_6a0ca1a6ce79e20401158821779212710
title_6a0ca1a6ce7b319691981831779212710
title_6a0ca1a6ce7c68958201361779212710
title_6a0ca1a6ce7d86111956281779212710

Монолитный дом ДМР 101

Артикул: ДМР101
Рейтинг:

Просмотров: 18491 | Отзывов: 0

Дата обновления проекта: 13.02.2024 11:53:36

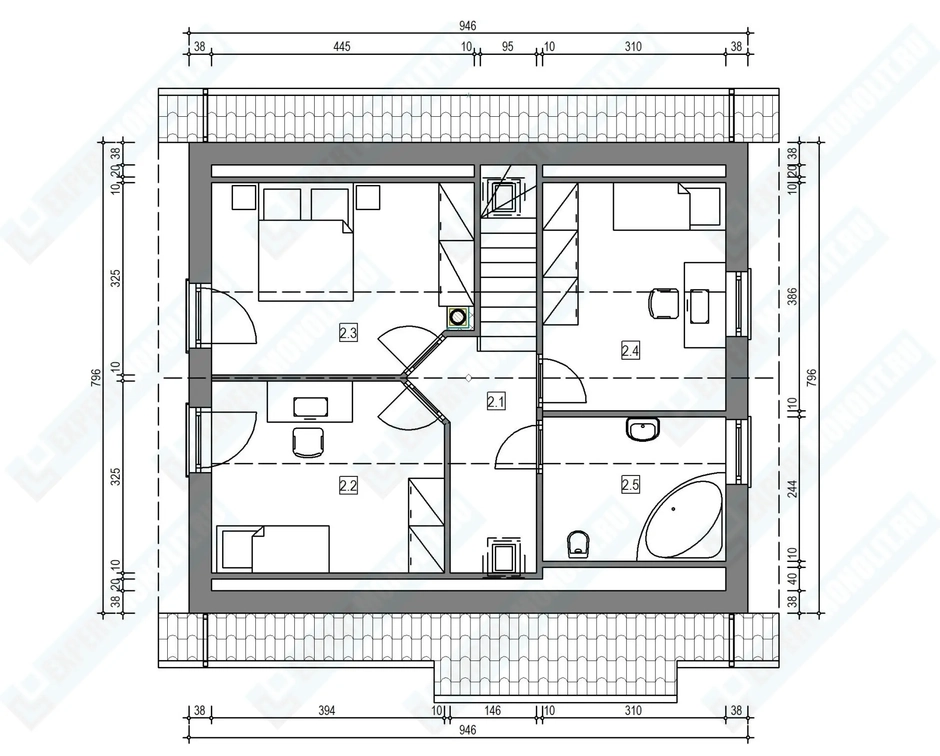
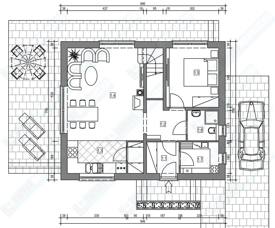
Состав монолитного дома ДМР 101 площадью - 97,48 м2:

  • 1 этаж - 56,65 м2:
  • Мансардный этаж - 40,83 м2:

Дополнительные параметры:

  • Площадь застройки: 75,83 м2.;
  • Общаяя площадь: 112,92 м2.;
  • Общий объем пространства: 449,10 м3;
  • Уклон крыши: 40 градусов;
  • Минимальная ширина участка: 17,46 м.;
  • Минимальная длина участка: 15,96 м.;

Дом предназначен для постоянного места проживания.

Тип фундамента:

  • Плита

При получении геологических данных Вашего участка в Мурино, тип фундамента для дома DMR-101 может быть изменён на другой в соотвествии с требованиями.

Все строительные работы по данному дому будут выполняться нашей компанией напрямую, без посредников.

Помощь клиенту:

Холодный контур:

  • Фундамент и коробка с кровлей;
  • Межкомнатные перегородки;
  • Инженерные сети;
  • Дымоход и вент. каналы.

Тёплый контур:

  • Фундамент и коробка с кровлей;
  • Межкомнатные перегородки;
  • Инженерные сети;
  • Дымоход и вент. каналы;
  • Наружные окна и двери;
  • Утепление фасадов;
  • Черновая отделка.

Под ключ:

  • Фундамент и коробка с кровлей;
  • Межкомнатные перегородки;
  • Инженерные сети;
  • Дымоход и вент. каналы;
  • Наружные окна и двери;
  • Утепление фасадов;
  • Черновая отделка;
  • Фасадная отделка.
Отзыв
Оставить отзыв
Характеристики дома:
Срок строительства: До 3-х месяцев
Кол-во комнат: 3
Кол-во санузлов: 2
Тип строения: Частный дом
Площадь дома (кв. м.): 97.48
Общая площадь: 120 м2
Ширина дома (м.): 7.96
Общая ширина: 8 м
Длина дома (м.): 9.46
Общая длина: 10 м
Высота дома (м.): 7.78
Этажность: Одноэтажный с мансардой
Сегмент: Эконом
Стиль: Европейский
Каркас / тип коробки: Монолитный, железобетонный
Несущие стены: Монолитные + газобетонные блоки
Фасад дома: Декоративная штукатурка, Элементы из дерева
Тип крыши: Двухскатная
Класс энергоэффективности: А
Опции: Большие окна, Камин
Гарантийный период
Гарантия: 5 лет
СК «Эксперт Монолит» выполнит строительство монолитного дома ДМР-101 в Мурино, включая черную отделку. Бетонный дом с декоративной отделкой из штукатурки и элементами дерева DMR-101: Общая площадь - 97,48 м2. Отлично подойдёт семье из 3-х человек для постоянного проживания. По вашему желанию можно изменить проект, материалы и фактуру. При выполнении строительных работ будут учтены все необходимые СНиП, ГОСТы и СП.
Строительство
Поставка материалов:
Состав дома:
Старая цена: 3 902 742 Руб.
Цена от: 3 380 606 Руб.
Количество:
Помощь при заказе

Категории проектирования

Категории домов

Найти проект дома

Актуальные акции и скидки

title_6a0ca1a63fd161530119991779212710
Скидка 50% на проектЭкономия до 100 т.р.
title_6a0ca1a63fd4113055396781779212710
Ландшафтный проектЭкономия до 50 т.р.
title_6a0ca1a63fd6514507689991779212710
3D-моделированиеЭкономия до 35 т.р.
title_6a0ca1a63fd8920325366181779212710
Бесплатное крыльцоЭкономия до 150 т.р.
title_6a0ca1a63fdac12666230151779212710
Бесплатный авто навесЭкономия до 100 т.р.
title_6a0ca1a63fdce3250229781779212710
Проектирование баниЭкономия до 50 т.р.
title_6a0ca1a63fdef20188188671779212710
Бесплатный септикЭкономия до 100 т.р.
title_6a0ca1a63fe1118402536761779212710
Строительство гаражаЭкономия до 500 т.р.

Дополнительные ответы на вопросы по строительству домов в Мурино

Дома в каких стилях вы строите?
  • Английский стиль: предлагаем элегантные дома с кирпичными фасадами и уютными каминами.
  • Арт-деко: возводим стильные дома, отражающие роскошь и геометрическую симметрию характерные для арт-деко стиля.
  • Готика: предлагаем уникальные дома с высокими арками, резными деталями и темной атмосферой.
  • Европейский стиль: включает в себя разнообразные архитектурные традиции разных стран Европы, такие как английский коттедж, средиземноморский или шале. Дома в европейском стиле вы возводим из железобетона с характерными элементами и деталями камня, и кирпича.
  • Классический стиль: возводим элегантные и утонченные дома, вдохновленные классической традиционной архитектурой с акцентами на деталях и роскоши.
  • Колониальный стиль: предлагаем величественные дома с большими верандами, пилястрами и классическими элементами.
  • Модернистский стиль: воплощаем смелые архитектурные решения, которые подчеркивают современность и функциональность дома.
  • Прованс: строим уютные загородные дома с каменными стенами, деревянными балками и просторными террасами.
  • Стиль Райта: гармоничное сочетание дома с окружающей природой, уникальные органические формы, использование натуральных материалов и просторные открытые планировки.
  • Средиземноморский стиль: предлагаем дома с характерными элементами Средиземноморской архитектуры, такими как арки, террасы и каменные детали.
  • Футуристический стиль: предлагаем смелые и современные дома с нестандартной формой и использованием передовых технологий.
  • Современный стиль Хай-тек: создаём современные и технологичные дома с использованием передовых строительных материалов и технологий. Дома имеют четкие линии и стильный вид.

Каждый из этих стилей имеет свою уникальность и привлекательность, и мы готовы предложить вам строительство дома в любом из указанных стилей или разработать уникальный проект, отвечающий вашим потребностям и предпочтениям.

Какие оконные перемычки вы применяете?

В процессе возведения монолитных домов из железобетона, наша компания применяет надежные оконные перемычки из армированного бетона. Эти перемычки обеспечивают прочность и устойчивость оконных откосов, а также эффективную теплоизоляцию и звукоизоляцию.

В редких случаях применяем ещё 2 типа перемычек, если такие имеются в проекте:

  • Железобетонные перемычки: являются классическим и надежным выбором для оконных откосов. Они изготавливаются из железобетонной смеси, которая сочетает в себе прочность стали с прочностью бетона. Эти перемычки обеспечивают стабильную опору для оконных рам и эффективно справляются с нагрузками, возникающими в процессе эксплуатации дома.
  • Металлические перемычки: изготавливаются из прочных и долговечных металлических конструкций. Они обеспечивают отличную прочность и устойчивость оконных откосов, что особенно важно для больших оконных проемов или в зонах с повышенной нагрузкой на конструкцию.

Вне зависимости от выбранного типа оконных перемычек, наши специалисты гарантируют качественный монтаж и строгое соблюдение всех строительных стандартов.

Строите ли вы убежища или бункер внутри частного дома?

Мы можем разрабатывать и строить бункерные убежища и даже предусмотреть возможность создания черных ходов в вашем частном доме. Однако, важно понимать, что такое решение является затратным и сложным с технической точки зрения.

Строительство бункеров и убежищ требует высокой инженерной подготовки и специализированных знаний в области безопасности и строительства подземных сооружений. Эти сооружения должны быть спроектированы и построены с учетом множества факторов, таких как глубина залегания, устойчивость к нагрузкам, системы вентиляции, водоотведения и др.

Также важно отметить, что при строительстве бункеров и убежищ необходимо соблюдать соответствующие законодательные нормы и требования. В различных регионах могут действовать определенные ограничения или лицензионные требования к подобным сооружениям.

Одним из важных факторов, которые следует учесть, является законодательное ограничение по использованию почвенного слоя глубиной до 5 метров на участке земли под индивидуальное жилищное строительство (ИЖС), согласно Закону "О недрах" (статья 19). Это может повлиять на возможность и расположение бункера на вашем участке, поэтому важно учесть этот аспект при планировании будущего проекта.

Как решается вопрос с проживанием строителей?

Мы уделяем особое внимание к условиям проживания наших рабочих, чтобы обеспечить эффективное и качественное выполнение строительных работ.

Для решения вопроса с проживанием, предоставляем различные варианты:

  • Временные жилые бытовки: оборудуем временные жилые модули на участке, что позволяет нашим работникам жить вблизи объекта строительства, экономя время и средства на дорогу.
  • Аренда жилья: в случае, если участок находится в близи к городской среде, мы можем предоставить рабочим арендное жилье в непосредственной близости от стройки.
  • Сменный график работы: для некоторых проектов, где проживание на стройке не требуется, используем сменный график работы, позволяющий нашим рабочим жить дома и приезжать на объект только в рабочее время.

В ходе строительных работ, все строители, которые принимают участие в возведения вашего дома, несут коллективную ответственность. Мы гарантируем, что условия проживания наших рабочих соответствуют стандартам безопасности и комфорта.

Как решается вопрос с временными септиками и душевыми кабинками для строителей?

Предоставляем оптимальные решения для обеспечения условий проживания наших строителей на участке:

  • Устанавливаем временные септические системы (биотуалеты).
  • Для проживания наших работников, мы предоставляем мобильные душевые кабинки. Это позволяет нашим строителям поддерживать чистоту и комфорт даже в условиях временной жизни на стройке.

Мы соблюдаем все санитарные нормы и требования предоставляя временные септики и душевые кабинки на стройплощадке, мы создаем условия для эффективной и качественной работы.

Оказываете ли вы услуги по достройке или реконструкции уже начатых домов?

Для обеспечения высокого качества и надежности работ, мы следуем определенным принципам. Для начала достройки или реконструкции, мы требуем наличие экспертного заключения по обследованию объекта и и наличия полноценного проекта. Это позволяет нам оценить состояние существующей конструкции, выявить возможные риски и разработать оптимальное решение для реализации вашей задумки.

Важно отметить, что, если начатое строительство было допущено с явными нарушениями и представляет угрозу безопасности или не соответствует строительным нормам, мы вынуждены будем отказаться от таких работ. Также следует учесть, что сроки гарантийных обязательств могут быть уменьшены.

Мы придерживаемся строгих стандартов качества и безопасности, чтобы обеспечить нашим клиентам надежное и долговечное жилье.

Занимаетесь ли вы сносом старой постройки?

При необходимости демонтажа старой постройки, наша компания обеспечит безопасное выполнение данной работы. Используем спецтехнику и оборудование, которые позволяют проводить демонтажные работы эффективно и с минимальными помехами для окружающей среды.

Кроме того, наша команда обеспечит уборку строительного мусора после завершения демонтажных работ. Мы понимаем важность поддержания чистоты и порядка на участке, и гарантируем, что все строительные отходы будут удалены надлежащим образом.

Как утепляются монолитные стены?

В ходе выполнения работ мы выполняем определенные технологии утепления монолитных стен из железобетона, согласно каждому отдельно взятому проекту:

Подготовка поверхности: прежде чем приступить к утеплению, мы осуществляем подготовку поверхности монолитных стен, тщательно очищая ее от пыли и загрязнений.

Выбор оптимального утеплителя: в зависимости от ваших требований к энергоэффективности и бюджету, мы предлагаем различные типы утеплителей по проекту, такие как минеральная вата, экстрадированный пенополистирол или пеноплекс. Учитываем климатические особенности региона, чтобы предоставить оптимальное решение.

Монтаж утеплителя: на следующем этапе, утеплитель укладывается на стены и крепится с помощью специальных крепежных элементов, обеспечивая надежную фиксацию и минимизируя теплопотери.

Армирование и защитный слой: после установки утеплителя, поверхность обрабатывается специальными составами, которые повышают прочность и защищают утеплитель от воздействия внешних факторов.

Окончательная отделка: в завершение утепления фасада, мы предлагаем различные варианты финишной отделки, такие как декоративная штукатурка или облицовка кирпичом. Вы можете выбрать тот вариант, который лучше всего сочетается с проект-дизайном вашего дома.

Мы гарантируем, что все работы по утеплению монолитных стен будут проведены качественно и в срок. Наша команда опытных специалистов обладает всеми необходимыми знаниями и навыками для успешного выполнения проекта.

Какие толщины монолитных стен вы рекомендуете для дома?

Наша компания готова предложить вам несколько вариантов толщины стен в соответствии с вашими потребностями, предпочтениями, а также рекомендации проектировщиков в соответствии с климатическими условиями в Ленинградской области.

Несущие стены коробки дома:

  • Компактность и экономичность: если вы стремитесь к оптимальному использованию площади и предпочитаете более экономичный вариант, рекомендуем использовать стены толщиной 150 мм. Такие стены обеспечат достаточную прочность и хорошую теплоизоляцию.
  • Усиленная прочность: если вы желаете обеспечить повышенную прочность, рекомендуем рассмотреть стены толщиной до 200 мм. Этот вариант обеспечит дополнительную защиту, комфортную теплоизоляцию и шумоизоляцию, что позволит вам наслаждаться комфортом и покоем в вашем уютном уголке.

Для внутренних перегородок, которые не несут никакой нагрузки, мы рекомендуем использовать стены толщиной от 100 до 160 мм. Это позволяет оптимизировать использование площади дома и обеспечить комфортное размещение помещений.

Стены толщиной до 300 мм актуальны для домов, расположенных в шумных районах или с близким расположением к соседям, и имеют повышенную теплоизоляцию и улучшенной звукоизоляции. Однако нужно учитывать, что такой дом будет сложнее прогреваться от лучшей солнце, и иметь повышенные расходы на его отопление.

Конечно, выбор толщины стен зависит от ваших предпочтений, бюджета, геологии участка и конкретных требований.

Как вы производите вязку арматуры?

Этапы, которые мы выполняем при вязке арматуры:

  1. Подготовка арматуры: начинается с раскладки арматурных элементов в соответствии с проектом. Мы используем специальные компьютерные программы для расчета и оптимизации расхода арматуры, что позволяет минимизировать отходы и сэкономить материалы.
  2. Резка арматуры: арматурные стержни режутся на необходимые размеры с помощью ручного станка для резки арматуры. Это обеспечивает точные размеры арматуры, необходимые для создания прочной и надежной конструкции, а также экономию на применении болгарки и расходы на диски для неё.
  3. Гибка арматуры: для формирования арматурных элементов в нужные геометрические конфигурации, мы используем ручной гибочный инструмент. Гибка производится согласно строительному проекту и требованиям, чтобы обеспечить правильную форму и положение арматуры в конструкции.
  4. Вязка арматуры: после подготовки элементов арматуры, мы производим их вязку, собирая их в единую арматурную сетку. Вязка выполняется с использованием специальных стяжек и проволоки, что обеспечивает прочное и надежное соединение между элементами арматуры.
  5. Сборка конструкции: подготовленные арматурные элементы используются для сборки конструкции по месту или отдельно. Наши опытные строители профессионально устанавливают арматурную сетку внутри опалубки, которая представляет собой временный каркас для заливки бетоном. Важно обеспечить правильное расположение и фиксацию арматуры, чтобы гарантировать прочность и стабильность будущей монолитной конструкции.

Контроль качества: после завершения процесса вязки, наши специалисты осуществляют контроль качества, проверяя правильность размеров, формы и качества вязки арматуры. Это позволяет убедиться в соответствии конструкции проекту и гарантирует высокую прочность и долговечность дома.

Арматуру какого диаметра вы используете?

В процессе строительных работ мы используем арматуру различных диаметров со строгими регламентами проекта, чтобы обеспечить оптимальную прочность и надежность конструкции.

Этапы применения различных диаметров арматуры:

  • Фундамент: для усиления фундамента и обеспечения его надежности мы применяем арматуру с более крупными диаметрами, как правило, это арматура диаметром от 12 до 16 мм. Это позволяет обеспечить наилучшие свойства и характеристики фундамента и поддерживать равномерное распределение нагрузок.
  • Стены и перекрытия: в стенах и перекрытиях, мы используем арматуру с меньшими диаметрами, обычно это арматура диаметром от 8 до 10 мм. Такой выбор арматуры позволяет обеспечить конструкционную прочность и плотность структуры, а также улучшить адгезию с бетоном.
  • Каркасные элементы: для каркасных элементов, таких как колонны и балки, мы используем арматуру с различными диаметрами в зависимости от нагрузок, которые они будут нести. Это может быть арматура диаметром от 10 до 14 мм в зависимости от спецификаций проекта.
Какие допустимые отклонения вы соблюдаете, при возведении стен?

Определены предельные отклонения для завершенных бетонных и железобетонных несущих стен здания в соответствии с разделом 5.18 СП 70.13330.2012 «Несущие и ограждающие конструкции» и актуализированной редакцией СНиП 3.03.01-87.

  • Для стен, поддерживающих монолитные покрытия и перекрытия, допустимая кривизна составляет 15 мм. А для стен, поддерживающих сборные балочные конструкции, допускается отклонение до 10 мм.
  • При возведении стен в скользящей опалубке без промежуточных перекрытий, допустимое отклонение составляет 1/500 высоты сооружения, но не более 100 мм. Например, для стены длиной 5 метров, допустимая кривизна равна 10 мм.
  • Если же в процессе строительства предусмотрены промежуточные перекрытия, то допустимое отклонение уменьшается до 1/1000 высоты сооружения, но не более 50 мм. Таким образом, для сооружения высотой 10 метров допустимая кривизна стен также составит 10 мм.

Мы придерживаемся выполнять показатели с самыми минимальными значениями, в отличие с заложенных допусков, поэтому обеспечиваем высокое качество и точность в возведении монолитных стен.

Какую опалубку вы используете в ходе работ?

Мы стремимся предоставить вам лучшие условия и высокое качество строительства. Что касается опалубки, мы работаем с различными типами опалубочных систем в зависимости от конкретных требований и особенностей проекта.

  • Деревянная опалубка: это классический и распространенный вариант опалубки. Она состоит из деревянных досок, фанерных листов или даже ОСБ, которые собираются вместе, чтобы образовать необходимую форму для заливки бетона. Деревянная опалубка отличается доступной стоимостью и простотой использования. Однако она не всегда подходит для долгосрочных проектов из-за недостаточной стойкости к механическим нагрузкам и влажности.
  • Металлическая опалубка: этот тип опалубки обладает высокой прочностью и долговечностью. Металлическая опалубка может использоваться многократно, что делает ее более экономичным решением для проектов с повторяющимися элементами. Она обеспечивает точность формы и устойчивость структуры, что особенно важно при возведении монолитных домов.
  • Пластиковая опалубка: этот тип опалубки изготавливается из высокопрочных пластиковых материалов. Она легкая, устойчивая к агрессивным средам и обладает хорошими изоляционными свойствами. Пластиковая опалубка может быть использована в различных условиях строительства и легко монтируется, и демонтируется.
  • Комбинированная опалубка: в некоторых проектах может использоваться комбинация различных типов опалубки для оптимальной адаптации к специфическим условиям строительства.

Наши специалисты подберут оптимальный тип опалубки, учитывая требования вашего проекта, бюджетные ограничения и сроки строительства. Мы гарантируем высокое качество работы и соблюдение всех технических стандартов, чтобы обеспечить успешное и безопасное выполнение строительных работ.

Вопросы и ответы по проектированию и строительству домов в Мурино

Какие типы домов вы возводите?

Мы специализируемся на строительстве частных монолитных домов из железобетона, а также домов из кирпича и газобетона.

Что нужно для начала строительства дома?

Для начала сотрудничества с нами, необходимо чтобы вы имели в собственности участок. Если этот пункт выполнен, то требуется произвести на участке геологические работы по исследованию грунта на месте возведения дома. Поскольку монолитные или кирпичные дома имеют значительный вес, то это обязательное требование, перед началом проектирования вашего будущего дома.

На начальном этапе наши специалисты совместно с вами бесплатно разработают предварительный макет посадки дома на вашем участке. Также, разработают планировку под ваши индивидуальные требования (необходимые помещения, кол-во комнат и сан узлов, высота и кол-во этажей, инженерные сети и многое другое), затем предоставят 3Д визуализацию вашего будущего дома по 6 точкам.

После того, как макет будет вами утверждён, совместно с вами будет составлено техническое задание и договор на проектирование будущего дома. После этих этапов, можно уже приступать к строительству.

Зачем нужно проектирование дома?

Проектирование дома играет ключевую роль в создании функционального и комфортного жилья. Это позволяет оптимально распределить пространство, учитывая потребности жильцов. В процессе проектирования уделяется внимание планировке, эргономике, энергоэффективности и безопасности. Кроме этого, проектирование способствует экономии ресурсов при строительстве и последующей эксплуатации дома, а также влияет на его эстетический облик, создавая приятную атмосферу для проживания.

Более того, проектирование – это рабочая документация как для строительной организации, так и для заказчика, поскольку в ходе строительных работ во избежание спорных нюансов, проект является неотъемлемой частью договора и помогает решить множество рабочих моментов.

Наша компания не выполняет работы без проектной документации.

Что входит проектирование?

В проектирование входят основные разделы:

Архитектурный раздел (АР); Конструкции железобетонные (КЖ); Конструктивный раздел (КР); Водоснабжение и канализация (ВК); Отопление и вентиляция (ОВ); Электрика и освещение (ЭО); Генплан (Посадка дома на участок); Эскизный проект (ЭП); 3D моделирование (визуализация объекта по точкам).

В состав проекта входит приблизительно 60 листов и составляет полный комплект чертежей. Подробный перечень проектных работ опубликован в разделе проектирование.

Делаете ли вы геологические работы на участке?

Да, мы оказываем выполнение инженерно-геологических изысканий в полном объеме с целью комплексного изучения инженерно-геологических условий территории (площадки, участка, трассы) для получения необходимых и достаточных материалов при подготовке документов территориального планирования и планировки территории, архитектурно-строительного проектирования, строительства и реконструкции зданий и сооружений. Для возведения дома достаточно предоставить исследования с 3-х точек глубиной от 8 до 12 метров.

Полный перечень работ:

  • Сбор, изучение и систематизация материалов изысканий прошлых лет по горным выработкам;
  • Бурение скважин;
  • Отбор проб грунта;
  • Лабораторные определения гранулометрического состава и физических свойств грунтов;
  • Лабораторные определения химических свойств грунтовых вод;
  • Лабораторные определения коррозионной агрессивности грунтовых вод и грунтов по отношению к бетону и металлическим конструкциям;
  • Камеральная обработка материалов изысканий прошлых лет, буровых, лабораторных работ;
  • Составление Технического отчета.
Как происходит строительство дома?

Строительство выполняется поэтапно, согласно графику работ по договору:

  • Заезд строительной бригады;
  • Подготовительные работы по участку, фундаменту, инженерных сетей;
  • Возведение фундамента;
  • Подготовительные работы для инженерных сетей и закладка необходимых технологических отверстий (гильзы, проходки, шахты и т.п.);
  • Возведение стен, перекрытий, монолитной коробки дома;
  • Выполнение кровельных работ, монтаж окон и дверей;
  • Выдача паспорта с подтверждением основных характеристик бетона;
  • Проверка и запуск инженерных сетей;
  • Утепление наружных стен дома;
  • Выполнение фасадных работ (штукатурно-отделочные работы или кладка облицовочного кирпича);
  • Вывоз строительного мусора;
  • Сдача объекта заказчику;
  • Выезд строительной бригады.

Приемка каждого этапа работ или конечного результата подтверждается подписанием сторонами акта сдачи - приемки выполненных работ.

Какие сроки?

Сроки работ зависят от площади и сложности строения дома, ниже приведены базовые сроки площадью дома до 140 кв.м.:

  • Геология участка – 1 день.
  • Результаты экспертизы геологии – 30 дней.
  • Проектирование – до 2-х месяцев.
  • Строительство коробки дома под ключ с фасадной отделкой – от 2-х до 4-х месяцев, в зависимости от кол-ва этажей.

Все сроки прописаны в графике выполнения работ по договору.

Можно ли заказать строительство дома в кредит или ипотеку?

Через нашего кредитного брокера мы можем помочь получить кредит, он проведёт для вас необходимую консультацию. Однако, мы не гарантируем 100% результат, поскольку каждый случай является индивидуальным.

Услуги кредитного брокера платные и рассчитываются отдельно.

Какие гарантии вы даете?

Мы предоставляем гарантии:

  • На проектирование – 5 лет;
  • На строительство дома – 5 лет;
  • На используемые материалы – гарантия на условиях производителя, как правило от 2 лет и более.
Как происходит оплата?

Оплата осуществляется поэтапно, согласно графику оплаты и строительных работ по договору. Мы никогда не берем 100% предоплату, поэтому вносить всю сумму сразу нет необходимости.

Тем самым, мы создаем приемлемые условия для своих заказчиков, чтобы они могли своевременно сформировать бюджет на строительство заблаговременно. Такой метод напоминает оплату в рассрочку.

Цены на строительство жилья прописаны в договоре, после согласования сметных работ и не могут быть увеличены.

Есть вопрос? Задайте его нам

Уважаемые клиенты, пожалуйста опишите максимально подробно ваше сообщение и по необходимости приложите файлы (максимальный размер файла 1,2Mb).

Если ваш вопрос покажется нам интересным, то он будет опубликован в разделе «вопросы и ответы».

Наши специалисты ответят вам в ближайшее рабочее время

Недавно смотрели

Как проверить смету на строительство дома

Если у вас уже есть смета, вы можете отправить её нам для сравнения, и мы предоставим цены ниже в 95% случае, без потери качества на:

  • Материалы;
  • Строительные работы;
  • Доставку и иные затраты.

Вы также можете подать заявку на расчет стоимости по нашей форме:

Рассчитать стоимость

Проверка сметы

Подписка на рассылку
Подпишитесь, чтобы получать уникальные предложения на проектирование и строительство домов

В соответствии со статьей 437 ГК РФ все предложения и цены, указанные на сайте, носят информационный характер и не являются публичной офертой.

Контакты

Адрес: г. Санкт-Петербург, пр-кт Стачек, д. 16, Литера А, помещ. 124-Н

Тел.: +7 (812) 241-18-80

Адрес электронной почты защищен от спам-ботов. Для просмотра адреса в браузере должен быть включен Javascript.

График работы:

ПН-ЧТ: с 10:00 до 19:00

ПТ-СБ: с 10:00 до 18:00

Форма обратной связи