Конструктивный раздел проекта дома в Луге
title_6923cf406a5ae9600960891763954496
title_6923cf406a5be15785755481763954496
title_6923cf406a5cb12368359621763954496
title_6923cf406a5d720172287981763954496

Конструктивный раздел проекта дома в Луге

Артикул: КР-000001
Рейтинг:

Просмотров: 8196 | Отзывов: 1

Дата обновления проекта: 29.10.2023 19:36:45

Услуги по конструктивному проектированию дома или иного объекта в Луге

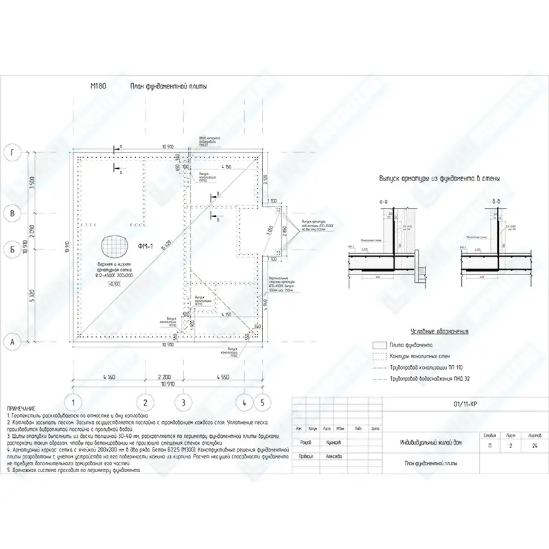
Конструктивный раздел (КР) представляет собой фундаментальный аспект нашего инженерного подхода к созданию каменных и монолитных домов. Он охватывает широкий спектр технических и проектировочных аспектов, нацеленных на обеспечение не только архитектурной интеграции, но и высокой степени функциональности, устойчивости и безопасности конструкции.

Услуга по разработке конструктивного раздела включает в себя:

  • Инженерные расчеты: комплексный анализ нагрузок, напряжений и деформаций, учитывающий как статические, так и динамические факторы, обеспечивая оптимальное распределение нагрузок в рамках здания.
  • Технические решения: согласование архитектурных концепций с инженерными решениями для создания гармоничной, устойчивой и функциональной структуры.
  • Фундамент и опоры: проектирование устойчивого фундамента, опор и свайных систем, учитывая геологические и геотехнические характеристики участка.
  • Железобетонные несущие конструкции (КЖ): планы железобетонных элементов вашего дома, включая в себя разработку систем несущих стен, перекрытий, балок, колонн и других носителей нагрузок с точностью до миллиметра, которые обеспечивают прочность и стабильность всей конструкции здания.
  • Изоляция и энергосбережение: разработка систем теплоизоляции и звукоизоляции для обеспечения оптимального климата и энергоэффективности.
  • Инженерные системы: внедрение систем водоснабжения, канализации, электроснабжения и вентиляции, отопления и водоснабжения, гарантирующих комфортное и безопасное проживание.
  • Строительные материалы: выбор и спецификация материалов, обеспечивающих долговечность и качество конструкции.
  • Техническая документация: создание детальных чертежей, схем, спецификаций и расчетов, необходимых для успешной реализации проекта.
  • Рабочая документация для строителей: описания процесса возведения, наблюдения за ходом строительных работ и контроль за соблюдением инженерных решений в процессе реализации.
  • Учет особенностей участка: адаптация проектирования к уникальным геологическим, геотехническим и климатическим условиям местоположения объекта.
  • Инновации и технологический прогресс: интеграция передовых технологий и инноваций для достижения высшего уровня качества и эффективности.

Конструктивный раздел проектирования – это неотъемлемый элемент нашего строительного подхода, который гарантирует надежность, безопасность и долговечность каждого монолитного дома.

Наша компания вкладывает многолетний опыт, экспертизу и профессионализм в каждый этап этого ключевого процесса, обеспечивая непревзойденное качество и инженерную надежность.

Доверьте нам проектирование конструктивного раздела – и вместе мы создадим дом, который будет воплощать ваш стиль, комфорт и уникальность.

Отзыв
Оставить отзыв
Проектирование
Срок разработки: 14 дней
Включает раздел: Конструктивный раздел (КР), Конструкции железобетонные (КЖ)
Кол-во листов до: 26
Строительная компания «Эксперт Монолит» специализируется по разработке конструктивного раздела проектирования в Луге – это та фундаментальная составляющая, которая содержит все необходимые расчеты, включая учёт нагрузок дома. Выполнение строго в соответствии с ГОСТ, СНиП и СП. Есть лицензии и СРО.
Проектирование
Формат отчёта:
Старая цена: 700 Руб.
Цена от: 350 Руб.
Цены
0 м2 - 99 м2 350 Руб. / м2
100 м2 - 139 м2 330 Руб. / м2
140 м2 - 199 м2 310 Руб. / м2
от 200 м2 290 Руб. / м2
Количество:
Помощь при заказе
Поиск по проектированию
Срок разработки
Включает раздел

Категории проектирования

Категории домов

Актуальные акции и скидки

title_6923cf3fa30ea17815048701763954495
Скидка 50% на проектЭкономия до 100 т.р.
title_6923cf3fa311a13471173721763954495
Ландшафтный проектЭкономия до 50 т.р.
title_6923cf3fa3142368985481763954495
3D-моделированиеЭкономия до 35 т.р.
title_6923cf3fa316913470590041763954495
Бесплатное крыльцоЭкономия до 150 т.р.
title_6923cf3fa31ab3820204581763954495
Бесплатный авто навесЭкономия до 100 т.р.
title_6923cf3fa31cf10590047651763954495
Проектирование баниЭкономия до 50 т.р.
title_6923cf3fa31f38146599851763954495
Бесплатный септикЭкономия до 100 т.р.
title_6923cf3fa321714563787161763954495
Строительство гаражаЭкономия до 500 т.р.

Вопросы и ответы по проектированию и строительству домов в Луге

Какие типы домов вы возводите?

Мы специализируемся на строительстве частных монолитных домов из железобетона, а также домов из кирпича и газобетона.

Что нужно для начала строительства дома?

Для начала сотрудничества с нами, необходимо чтобы вы имели в собственности участок. Если этот пункт выполнен, то требуется произвести на участке геологические работы по исследованию грунта на месте возведения дома. Поскольку монолитные или кирпичные дома имеют значительный вес, то это обязательное требование, перед началом проектирования вашего будущего дома.

На начальном этапе наши специалисты совместно с вами бесплатно разработают предварительный макет посадки дома на вашем участке. Также, разработают планировку под ваши индивидуальные требования (необходимые помещения, кол-во комнат и сан узлов, высота и кол-во этажей, инженерные сети и многое другое), затем предоставят 3Д визуализацию вашего будущего дома по 6 точкам.

После того, как макет будет вами утверждён, совместно с вами будет составлено техническое задание и договор на проектирование будущего дома. После этих этапов, можно уже приступать к строительству.

Зачем нужно проектирование дома?

Проектирование дома играет ключевую роль в создании функционального и комфортного жилья. Это позволяет оптимально распределить пространство, учитывая потребности жильцов. В процессе проектирования уделяется внимание планировке, эргономике, энергоэффективности и безопасности. Кроме этого, проектирование способствует экономии ресурсов при строительстве и последующей эксплуатации дома, а также влияет на его эстетический облик, создавая приятную атмосферу для проживания.

Более того, проектирование – это рабочая документация как для строительной организации, так и для заказчика, поскольку в ходе строительных работ во избежание спорных нюансов, проект является неотъемлемой частью договора и помогает решить множество рабочих моментов.

Наша компания не выполняет работы без проектной документации.

Что входит проектирование?

В проектирование входят основные разделы:

Архитектурный раздел (АР); Конструкции железобетонные (КЖ); Конструктивный раздел (КР); Водоснабжение и канализация (ВК); Отопление и вентиляция (ОВ); Электрика и освещение (ЭО); Генплан (Посадка дома на участок); Эскизный проект (ЭП); 3D моделирование (визуализация объекта по точкам).

В состав проекта входит приблизительно 60 листов и составляет полный комплект чертежей. Подробный перечень проектных работ опубликован в разделе проектирование.

Делаете ли вы геологические работы на участке?

Да, мы оказываем выполнение инженерно-геологических изысканий в полном объеме с целью комплексного изучения инженерно-геологических условий территории (площадки, участка, трассы) для получения необходимых и достаточных материалов при подготовке документов территориального планирования и планировки территории, архитектурно-строительного проектирования, строительства и реконструкции зданий и сооружений. Для возведения дома достаточно предоставить исследования с 3-х точек глубиной от 8 до 12 метров.

Полный перечень работ:

  • Сбор, изучение и систематизация материалов изысканий прошлых лет по горным выработкам;
  • Бурение скважин;
  • Отбор проб грунта;
  • Лабораторные определения гранулометрического состава и физических свойств грунтов;
  • Лабораторные определения химических свойств грунтовых вод;
  • Лабораторные определения коррозионной агрессивности грунтовых вод и грунтов по отношению к бетону и металлическим конструкциям;
  • Камеральная обработка материалов изысканий прошлых лет, буровых, лабораторных работ;
  • Составление Технического отчета.
Как происходит строительство дома?

Строительство выполняется поэтапно, согласно графику работ по договору:

  • Заезд строительной бригады;
  • Подготовительные работы по участку, фундаменту, инженерных сетей;
  • Возведение фундамента;
  • Подготовительные работы для инженерных сетей и закладка необходимых технологических отверстий (гильзы, проходки, шахты и т.п.);
  • Возведение стен, перекрытий, монолитной коробки дома;
  • Выполнение кровельных работ, монтаж окон и дверей;
  • Выдача паспорта с подтверждением основных характеристик бетона;
  • Проверка и запуск инженерных сетей;
  • Утепление наружных стен дома;
  • Выполнение фасадных работ (штукатурно-отделочные работы или кладка облицовочного кирпича);
  • Вывоз строительного мусора;
  • Сдача объекта заказчику;
  • Выезд строительной бригады.

Приемка каждого этапа работ или конечного результата подтверждается подписанием сторонами акта сдачи - приемки выполненных работ.

Какие сроки?

Сроки работ зависят от площади и сложности строения дома, ниже приведены базовые сроки площадью дома до 140 кв.м.:

  • Геология участка – 1 день.
  • Результаты экспертизы геологии – 30 дней.
  • Проектирование – до 2-х месяцев.
  • Строительство коробки дома под ключ с фасадной отделкой – от 2-х до 4-х месяцев, в зависимости от кол-ва этажей.

Все сроки прописаны в графике выполнения работ по договору.

Можно ли заказать строительство дома в кредит или ипотеку?

Через нашего кредитного брокера мы можем помочь получить кредит, он проведёт для вас необходимую консультацию. Однако, мы не гарантируем 100% результат, поскольку каждый случай является индивидуальным.

Услуги кредитного брокера платные и рассчитываются отдельно.

Какие гарантии вы даете?

Мы предоставляем гарантии:

  • На проектирование – 5 лет;
  • На строительство дома – 5 лет;
  • На используемые материалы – гарантия на условиях производителя, как правило от 2 лет и более.
Как происходит оплата?

Оплата осуществляется поэтапно, согласно графику оплаты и строительных работ по договору. Мы никогда не берем 100% предоплату, поэтому вносить всю сумму сразу нет необходимости.

Тем самым, мы создаем приемлемые условия для своих заказчиков, чтобы они могли своевременно сформировать бюджет на строительство заблаговременно. Такой метод напоминает оплату в рассрочку.

Цены на строительство жилья прописаны в договоре, после согласования сметных работ и не могут быть увеличены.

Есть вопрос? Задайте его нам

Уважаемые клиенты, пожалуйста опишите максимально подробно ваше сообщение и по необходимости приложите файлы (максимальный размер файла 1,2Mb).

Если ваш вопрос покажется нам интересным, то он будет опубликован в разделе «вопросы и ответы».

Наши специалисты ответят вам в ближайшее рабочее время

Недавно смотрели
Подписка на рассылку
Подпишитесь, чтобы получать уникальные предложения на проектирование и строительство домов

В соответствии со статьей 437 ГК РФ все предложения и цены, указанные на сайте, носят информационный характер и не являются публичной офертой.

Контакты

Адрес: г. Санкт-Петербург, пр-кт Стачек, д. 16, Литера А, помещ. 124-Н

Тел.: +7 (812) 241-18-80

Адрес электронной почты защищен от спам-ботов. Для просмотра адреса в браузере должен быть включен Javascript.

График работы:

ПН-ЧТ: с 10:00 до 19:00

ПТ-СБ: с 10:00 до 18:00

Форма обратной связи